
SolidCAM T&T: ToolKit – Uvoz CAM i TAB alata
Uvoz CAM i TAB alata. Pogledajte kako…

Uvoz CAM i TAB alata. Pogledajte kako…

Opcije za pohranjivanje vaših podataka u oblak kako biste ih kasnije lakše pronašli…

Kako dodati ili izmijeniti opis sloja u DraftSightu?

Generiranje realističnog gibanja temeljenog na kontaktu između komponenti

Podešavanje spojeva sklopa alata u ToolKit-u

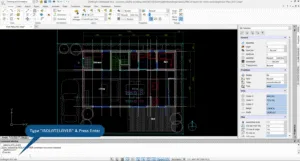
Nastavljamo sa slojevima. Danas activate i unfreeze.

Pojednostavite crteže – Smanjite glavobolje.

Sve pogodnosti korištenja Toolkita…

Kako promijeniti redoslijed slojeva prilikom ispisa u DraftSightu.