DraftSight za početnike 3 – prilagodite paletu
prilagodite paletu

DraftSight za početnike 3 – prilagodite paletu

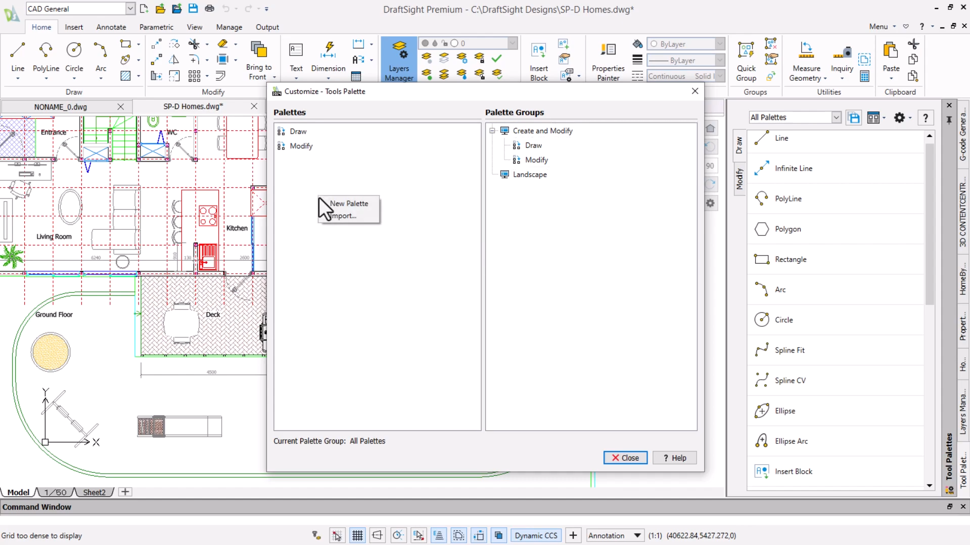
Palete nam omogućuju učinkovito organiziranje često korištenih naredbi i pojednostavljuju njihovu dostupnost dok radimo. Štoviše, naredbe palete besprijekorno integriraju svojstva crtaćih entiteta, omogućujući nam crtanje i uključivanje entiteta s točno potrebnim svojstvima za određena područja našeg dizajna.

Ova mogućnost prilagodbe pomaže nam u svakodnevnom radu, odnosno omogućava naše timu rad u poznatom radnom okruženju opremljenom alatima za učinkovito rješavanje svakodnevnih izazova.

Za bilo kakva pitanja, slobodno nas kontaktirajte putem kontakt forme niže.

 

Kontaktirajte nas

SOFTWARE

Kontaktirajte nas

Molimo unesite svoje podatke kako biste pristupili sadržaju: